Let
Property Icon
£ 2,850/pcm
Wanless Road, London
3 Bedrooms Town House

Description

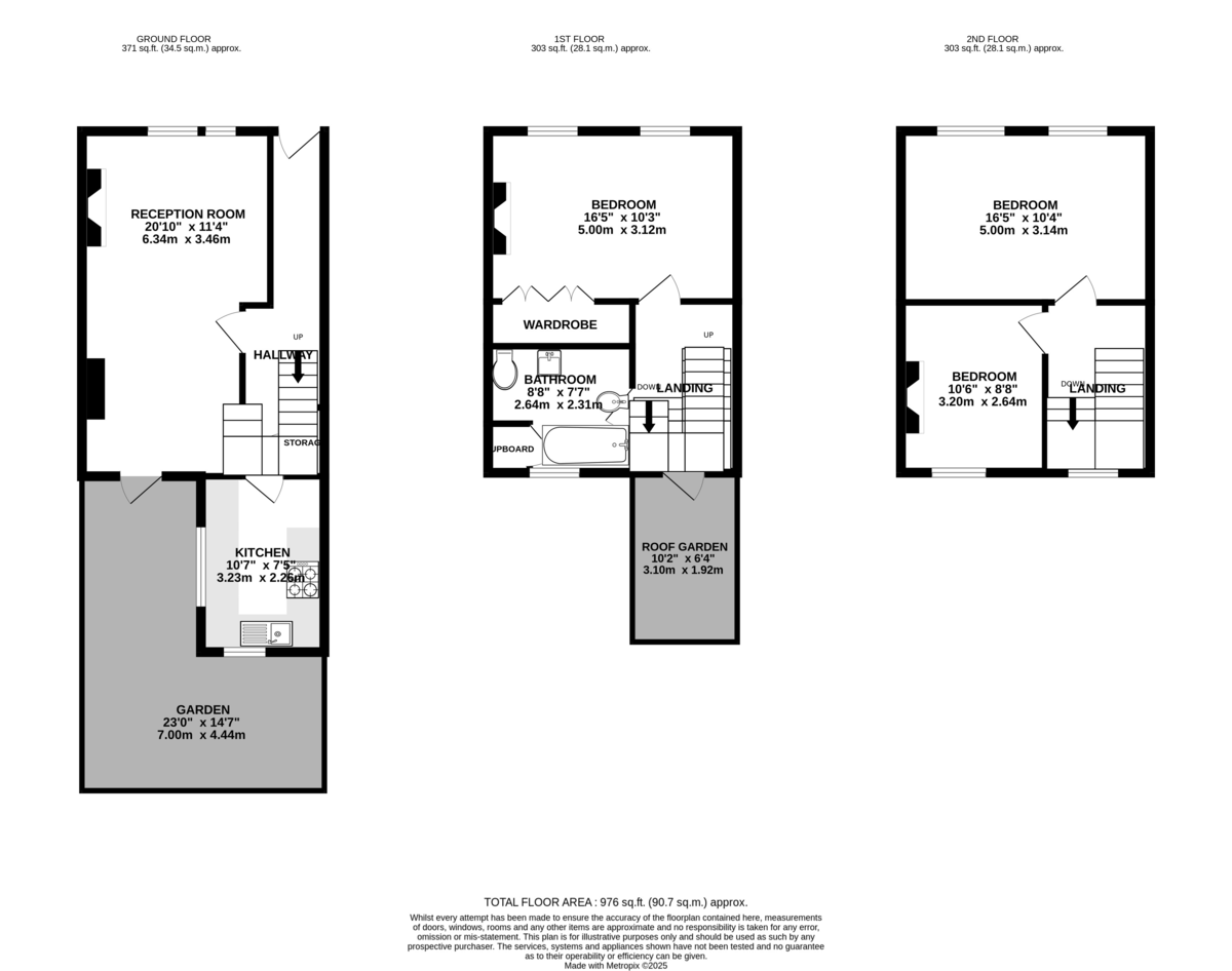
SE24 A three storey flat fronted Victorian Terrace House located within a 15-minute walk of Brixton tube. The house has been well looked after and features a large through lounge with a wood floor, a pretty patio garden and a roof terrace leading from the first floor. The accommodation is laid out as 4 bedrooms but would be ideal as 3 double bedrooms. An excellent location in a bustling vibrant part of London, very close to Ruskin Park, with its summer bandstand concerts, paddling pool and fete. Herne Hill weekend farmers market, cafes, Brockwell park and Lido. Loughborough junction with swift access in to London, new shops, cafes and bars, horse riding and local redevelopment and funding. A lovely house, full of character in a great up and coming area, within walking distance of pretty much everything, including St. Saviours & Jessops Schools.

Contact Agent

Urban Village Homes Limited
121 Denmark Hill
Camberwell
London
SE5 8EN
United Kingdom
Tel: 020 3519 9121
info@urbanvillagehomes.com

Property Features

  • Three storey Victorian Terrace House
  • Three double bedrooms
  • Through lounge with wood floor
  • Period fireplaces
  • Roof terrace and patio garden
  • Walking distance to Brixton tube
  • Ruskin & Brockwell Parks
  • Herne Hill farmers market
  • Great schools
  • Chain free!

Documents & Resources

Arrange a Viewing