For Sale
Property Icon
£ 650,000
Herne Hill Road, London
3 Bedrooms Apartment

Description

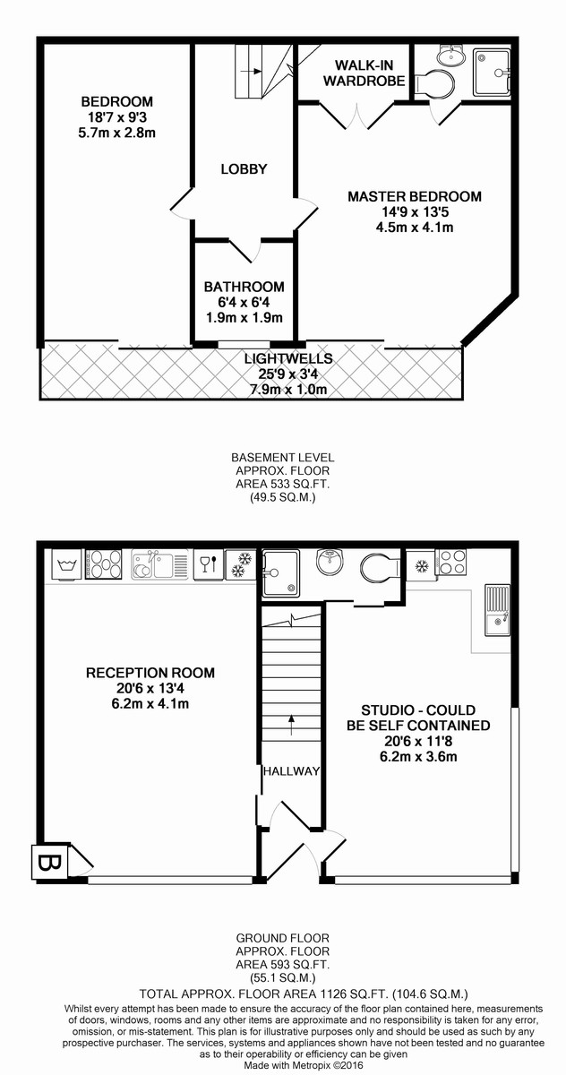
Modern stylish apartment, over two floors giving spacious accommodation. Three double bedrooms, three Bathrooms, two kitchens. A great investment property, Very close to Thames-link into Kings Cross, St Pancras and Blackfriars in just 8 minutes. Walking distance to trendy Brixton bars, shops and 'Village'. Walking distance to Kings College Hospital and Ruskin Park. Excellent facilities, such as bike storage, own front door leading from Herne Hill Road.

Contact Agent

Urban Village Homes Limited
121 Denmark Hill
Camberwell
London
SE5 8EN
United Kingdom
Tel: 020 3519 9121
info@urbanvillagehomes.com

Property Features

  • Modern apartment
  • Three double bedrooms
  • Two Kitchens
  • Excellent transport links
  • Three bathrooms
  • Luxurious and spacious accommodation
  • Flexible layout
  • Furnished
  • Local amenities
  • Ruskin park

Documents & Resources

Arrange a Viewing